1-pokojowe mieszkanie zlokalizowane na Mokotowie przy ul. Bukowińskiej
BUDYNEK/OSIEDLE
Mieszkanie znajduje się na 8 piętrze w 10 piętrowym budynku.
Rok budowy: 2016
NIERUCHOMOŚĆ
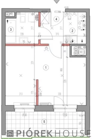
Mieszkanie o powierzchni 32,28 m2 składa się z:
- salonu z wydzieloną częścią sypialnianą (21,10 m2),
- aneksu kuchennego (3,33 m2),
- łazienki (4,50 m2),
-hallu (3,35 m2) .
Powierzchnia dodatkowa:
-balkon (9 m2).
Czynsz administracyjny wynosi 587zł.
Mieszkanie własnościowe.
Do mieszkania przynależy:
- miejsce postojowe w garażu podziemnym na poziomie -1, dodatkowo płatne 60 000 zł,
- komórka lokatorska, dodatkowo płatna 20 000 zł.
Ekspozycja okien- południe.
OKOLICA
Mieszkanie znajduje się na zamkniętym, monitorowanym osiedlu z całodobową ochroną, zapewniającym komfort i bezpieczeństwo mieszkańców.
Doskonała lokalizacja gwarantuje szybki dostęp do metra, tramwajów i autobusów, a także liczne tereny zielone w okolicy – m.in. Park Arkadia i Dolinka Służewiecka – idealne do spacerów i rekreacji.
W zasięgu krótkiego spaceru znajduje się pełna infrastruktura: sklepy, restauracje, kawiarnie, siłownia oraz różnorodne punkty usługowe, w tym również bezpośrednio w budynku.
Zapraszam na prezentację nieruchomości.
W razie zainteresowania prosimy o kontakt:
730 173 007, 530 835 079
Powyższa oferta ma charakter informacyjny i nie stanowi oferty handlowej w rozumieniu art. 66 §1 Kodeksu Cywilnego.
Podana ulica nieruchomości przy ogłoszeniu ma na celu wskazania przybliżonej lokalizacji z dużą dokładnością.
Bezpłatnie pomagamy znaleźć najkorzystniejszą na rynku ofertę kredytową.
Na życzenie w ramach prezentacji nieruchomości możliwość przeprowadzenia przez firmę budowlaną oceny stanu mieszkania i wycenę remontu.
Oferta wysłana z programu dla biur nieruchomości ASARI CRM (asaricrm.com)