Apartament w zabytkowej kamienicy, Centrum Poznania
Zapraszam do poznania wyjątkowej inwestycji w sercu Poznania – luksusowych mieszkań w stanie deweloperskim. To propozycja dla osób, które cenią elegancję historycznej architektury i komfort współczesnych rozwiązań.
KAMIENICA – IKONA STYLU I HISTORII
Budynek powstał w 1895 roku i do dziś zachwyca unikalną architekturą. To pięciokondygnacyjna kamienica, której charakter definiują:
trzy wykusze zwieńczone lukarnami,finezyjne hełmy dachowe z iglicami,misternie zdobione balkony z ażurowymi balustradami,imponująca narożna wieża z heksagonalnym dachem.Rewitalizacja przywróciła kamienicy dawny blask, podkreślając jej historyczny urok i ponadczasową elegancję. We wnętrzu uwagę przyciągają reprezentacyjne hole wejściowe, sztukatorskie zdobienia i ozdobne balustrady.
LOKALIZACJA – ULICA Z CHARAKTEREM
Ulica Działyńskich to jedna z najpiękniejszych i najbardziej prestiżowych w Poznaniu. Jednokierunkowa, obsadzona szpalerem dorodnych drzew, zachwyca spokojem i kameralnością.
W bezpośrednim sąsiedztwie znajdują się:
kawiarnie i restauracje, muzea, teatry i instytucje kultury, sklepy i butiki, parki miejskie i tereny zielone.
To lokalizacja, która łączy prestiż, historię i pełen wachlarz udogodnień miejskiego stylu życia.
MIESZKANIE – PRZESTRZEŃ I MOŻLIWOŚCI
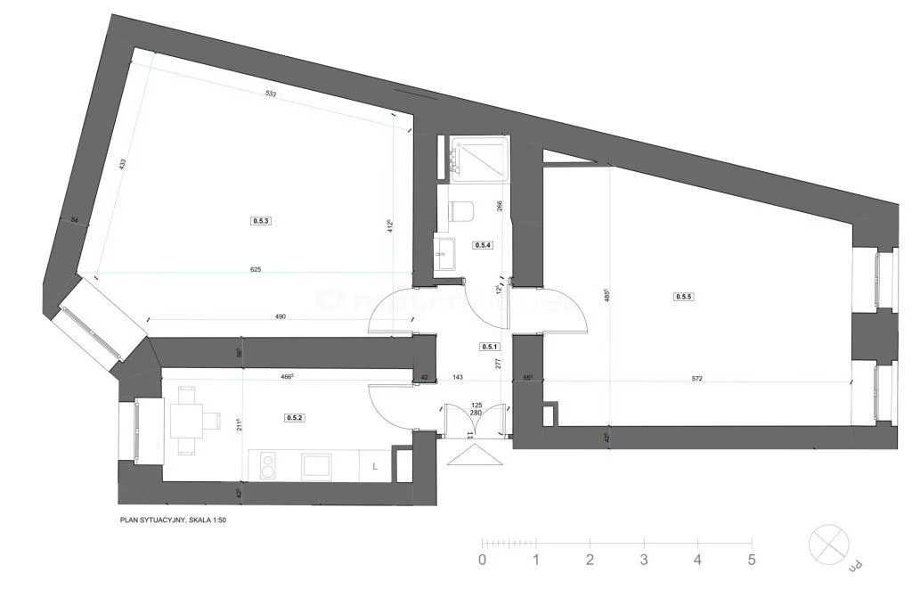
Przedmiotem oferty jest mieszkanie o powierzchni 69,57 m², położone na parterze sześciokondygnacyjnej kamienicy. Lokal narożny, jasny i przestronny, idealny zarówno do zamieszkania, jak i pod działalność biurową.
Rozkład pomieszczeń:
korytarz – 3,96 m²
kuchnia – 9,58 m²
łazienka – 3,51 m²
I pokój – 27,38 m²
II pokój – 25,14 m²
Dzięki wysokim sufitom i dużym oknom wnętrze zyskuje naturalne światło, przestrzeń i wyjątkową atmosferę. To mieszkanie, które pozwala na indywidualną aranżację w zgodzie z własnymi potrzebami i stylem życia.
INWESTYCJA – KOMFORT I BEZPIECZEŃSTWO
W Projekt pozostało 15 mieszkań o zróżnicowanych metrażach – od kameralnych kawalerek po imponujące, ponad 300-metrowe apartamenty.
Do dyspozycji mieszkańców przewidziano:
- miejsca postojowe w garażu,
- balkony i tarasy w wybranych lokalach,
- drzwi antywłamaniowe i monitoring,
- dwie windy zapewniające wygodę codziennego użytkowania.
ATUTY INWESTYCJI
prestiżowa lokalizacja w samym centrum Poznania,wyjątkowa architektura kamienicy z 1895 roku,nowoczesny standard w historycznych murach,pełna infrastruktura kulturalna i gastronomiczna w zasięgu spaceru,dogodna komunikacja: przystanek autobusowy, tramwajowy w zasięgu spaceru,
To oferta dla osób, które pragną połączyć ponadczasowy styl z komfortem współczesnego życia. Apartament przy ul. Działyńskich to esencja prestiżu, elegancji i wyjątkowego klimatu miasta.
Posiadam w sprzedaży całą inwestycję – zapraszam do kontaktu, aby poznać pełną listę dostępnych mieszkań.
Czy wiesz, że możemy przygotować dla Ciebie prezentację on-line nieruchomości? Skontaktuj się z naszym Agentem i zapytaj o szczegóły.
Pomimo, iż Doradcy Metrohouse przykładają szczególną staranność do rzetelnego prezentowania informacji o nieruchomości, nie zawsze jest możliwa weryfikacja wszystkich danych przekazanych od osób trzecich. Niniejsza prezentacja oferty nie jest ofertą w rozumieniu Kodeksu Cywilnego i ma charakter wyłącznie informacyjny.
Czy wiesz, że możemy przygotować dla Ciebie prezentację on-line nieruchomości? Skontaktuj się z naszym Agentem i zapytaj o szczegóły.
Pomimo, iż Doradcy Metrohouse przykładają szczególną staranność do rzetelnego prezentowania informacji o nieruchomości, nie zawsze jest możliwa weryfikacja wszystkich danych przekazanych od osób trzecich. Niniejsza prezentacja oferty nie jest ofertą w rozumieniu Kodeksu Cywilnego i ma charakter wyłącznie informacyjny.