Planujesz zakup dużego domu w Warszawie w Białołęce, ale nie masz czasu na zajmowanie się procesem budowy? - To doskonale się składa, bo my planujemy wprowadzić do sprzedaży dużego bliźniaka na dużej działce i to może być idealne rozwiązanie!
Mamy przyjemność zaprezentować planowaną do rozpoczęcia inwestycję przy ul. Billewicza (Białołęka) w Warszawie. Jest to 5-pokojowy dom z podwójnym garażem w zabudowie bliźniaczej z dużym ogrodem!
Jeśli szukasz dla siebie i swojej rodziny domu, który zapewni dużą przestrzeń każdemu domownikowi oraz pozwoli na długie godziny wytchnienia w przepięknym ogrodzie, to ta inwestycja będzie idealna dla Ciebie!
Szczegóły dotyczące planowanej inwestycji dostępne podczas wizji lokalnej oraz na życzenie – zapraszamy do kontaktu.
INWESTYCJA
Domy Duetto Etap III to inwestycja planowana do rozpoczęcia pod koniec 2025 roku. Będzie realizowana na działce o powierzchni 1153 m2 przy ul. Herakliusza Billewicza w warszawskiej Białołęce. Projekt zakłada budowę budynku mieszkalnego jednorodzinnego dwulokalowego. W bryle budynku znajdują się dwa podwójne garaże, po jednym dla każdego z lokali. Każdy lokal składa się z dwóch kondygnacji: parteru i użytkowego poddasza.
DOM
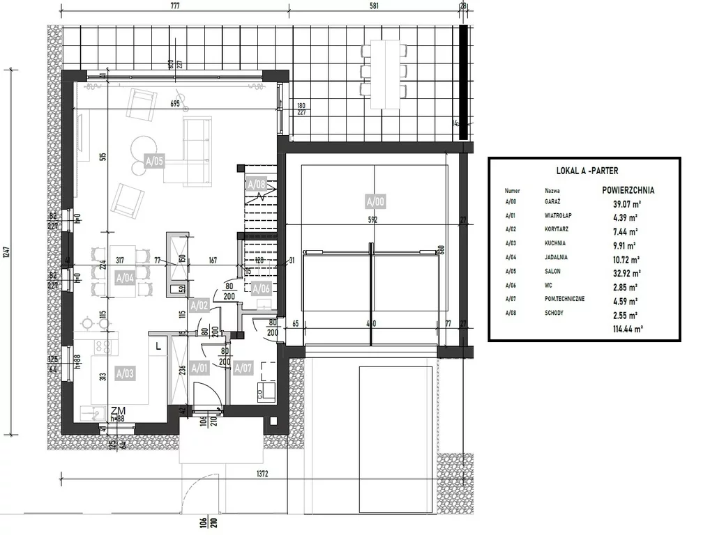
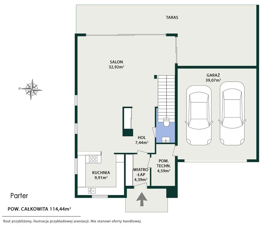
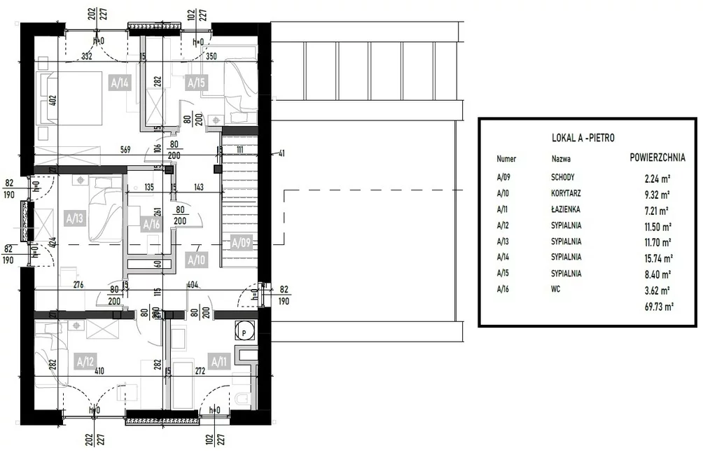
Nieruchomość opisana w niniejszym materiale to lokal "A", czyli lewy patrząc od wejścia do domu, o powierzchni użytkowej 184,17 m2, bliższy od ul. Billewicza.
Na parter składają się:
- wiatrołap (4,39 m2),
- korytarz (7,44 m2),
- schody (2,55 m2),
- WC (2,85 m2),
- salon (32,92 m2),
- kuchnia (9,91 m2),
- jadalnia (10,72 m2)
- pom. techniczne (4,59 m2),
- garaż dwustanowiskowy (39,07 m2).
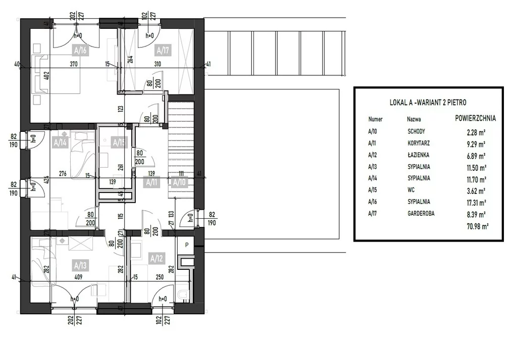
Na poddasze składają się:
- schody (2,24 m2),
- korytarz (9,32 m2),
- pokój (11,50 m2),
- pokój (11,70 m2),
- pokój (15,74 m2),
- pokój (8,40 m2),
- łazienka (7,21 m2),
- WC (3,62 m2).
Z tyłu budynku znajduje się przestronny taras wychodzący na prywatny ogrodzony ogród o łącznej powierzchni ponad 300 m2.
WYKOŃCZENIE
Inwestycja budowana jest z materiałów wysokiej jakości, a wieloletnie doświadczenie dewelopera gwarantuje dbałość o każdy szczegół budowy. Z jakością pracy i stanem oddawanych lokali można zapoznać się na Etapie I i II zrealizowanych przez ostatnie 3 lata przy tej samej ulicy. Osiedle wyróżniać się będzie nowoczesnym wyglądem, ponadczasowymi rozwiązaniami z zakresu efektywnego wykorzystania powierzchni zarówno na zewnątrz jak i wewnątrz. Lokale budowane są z wykorzystaniem praktycznych rozwiązań technicznych odpowiadającym nawet najbardziej wymagającym mieszkańcom. Istotnym elementem standardu wykończenia domu będzie rekuperacja (zawarta w cenie), która pomaga zachować dobrą jakość powietrza wewnątrz lokalu i zmniejsza utratę energii cieplnej, co znacząco wpłynie na niższe wydatki za ogrzewanie. Obydwa poziomy, zarówno parter jak i poddasze, zostaną wyposażone w ogrzewanie podłogowe. Lokal będzie również ogrzewany piecem gazowym (zawartym w cenie). Zostaną przygotowane kanały pod ewentualną fotovoltaikę, tak aby móc poprowadzić przewody bez konieczności przewiercania ścian. Zostanie wyprowadzona instalacja do klimatyzacji. Z tyłu budynków będą wyprowadzenia instalacji ogrodowej (woda gospodarcza, gniazdka). Zostaną zainstalowane kasety do instalacji rolet okiennych. Dla bezpieczeństwa mieszkańców, osiedle zostanie ogrodzone, a każdy lokal będzie posiadał stalowe drzwi wyposażone w bolce antywłamaniowe, zamek antywłamaniowy i wizjer. Brama wjazdowa na teren działki z automatyką. Bramy garażowe z automatyką.
Lokale będą mieć dostęp do następujących mediów: woda miejska, gaz, prąd, szambo 5 m3 wraz z szybkozłączkami w płocie (instalacja kanalizacyjna będzie wyprowadzona do drogi, aby w momencie wybudowania kanalizacji miejskiej w ul. Billewicza można było się szybko i łatwo podpiąć). Niedługo planowane jest również poprowadzenie ulicą przez operatora światłowodu.
Lokal sprzedawany jest w stanie deweloperskim wraz z elementami wymienionymi wyżej. Istnieje możliwość wykończenia segmentu "pod klucz" na podstawie indywidualnego projektu - całość realizowana jest przez renomowaną firmę DEKORUS o ugruntowanej wieloletniej pozycji na rynku prac wykończeniowych. - Większość sprzedanych w Etapie I i II lokali została właśnie w ten sposób wykończona i oddana "na gotowo". - Zapraszamy do kontaktu w sprawie ustalenia szczegółów.
HARMONOGRAM BUDOWY
ETAP I - do 31.12.2025
Zakup działki, Projekt, Przygotowanie placu budowy
ETAP II - do 30.04.2025
Roboty ziemne, Fundamenty (STAN "ZEROWY"); Ściany parteru i pierwszego piętra, strop nad parterem
ETAP III - do 31.08.2026
Wykonanie ścian działowych, konstrukcji oraz pokrycia dachu.
ETAP IV - do 30.09.2026
Wykonanie instalacji oświetlenia, gniazd wtykowych, odgromowa i uziemiająca oraz izolacji p.wodne.
ETAP V - do 30.11.2026
Montaż tablic rozdzielczych. Wykonanie tynków i posadzek wraz z instalacją centralnego ogrzewania, wodociągową, kanalizacyjną i rekuperacji - bez montażu kotłów, osprzętu elektrycznego i central rekuperacyjnych. Wykonanie elewacji.
ETAP VI - do 31.12.2026
Wykonanie zagospodarowania terenu, ogrodzenia, bramy wjazdowej do garażu. Przyłącza i wykonanie kanalizacji (szamba). Zamontowanie pieca gazowego, rekuperatora, zabudowy G-K wewnętrzne. Zakończenie budowy, uzyskanie pozwolenia na użytkowanie.
LOKALIZACJA
Inwestycja znajduje się w spokojnej części Zielonej Białołęki przy ul. Herakliusza Billewicza. Jest to miejsce idealne dla rodzin z dziećmi oraz dla osób starszych, które cenią ciszę i spokój w bezpiecznej okolicy oraz odpoczynek od zgiełku miasta z równoczesnym szybkim dostępem do punktów handlowo-usługowych pierwszej potrzeby.
Dla zmotoryzowanych istotne będzie położenie niedaleko ul. Płochocińskiej (1,4 km; 3 min autem) i trasy S8 (4,7 km; do 8 min autem).
Najbliższe przystanki autobusowe znajdują się przy ul. Białołęckiej oraz ul. Ostródzkiej (do 10 min pieszo - autobusy linii 104, 120, 314 i N14). W 12 min autobusem można dojechać do przystanku tramwajowego (Żerań Wschodni).
Okolica obfituje w różnorodne placówki opiekuńcze i oświatowe:
─ żłobki i przedszkola: Hula Hop, Malinowe Przedszkole, Biała Łączka, Cypisek, Biały Królik, Krecik, Plastusiowe Przedszkole i wiele innych,
─ szkoły podstawowe: SP nr 368, SP nr 386, SP nr 231, SP nr 112, SP nr 361,
─ szkoły średnie: CLXV Liceum Ogólnokształcące,.
Lokalizacja daje dostęp do rozbudowanej infrastruktury handlowo- usługowej Białołęki:
─ sklepy spożywcze: Jaskółka, Lewiatan, Zieleniak, Biedronka, Lidl (do 2,5 km; do 5 min autem),
─ apteki, restauracje, bary, siłownie, salony fryzjerskie i kosmetyczne, szkoły języków obcych, warsztaty samochodowe, myjnie, gabinety weterynaryjne, gabinety lekarskie i dentystyczne i wiele innych w odległości do 2 km.
Zwolennicy aktywnego trybu życia docenią bliskość terenów zielonych idealnych na spacery i wycieczki rowerowe (np. Kanał Żerański) oraz infrastruktury sportowej (m.in. korty tenisowe, boiska do piłki nożnej, skatepark).
STAN PRAWNY
Będą to dwa lokale wyodrębnione w momencie sprzedaży, z założonymi własnymi księgami wieczystymi i prawem do wyłącznego korzystania z własnej części ogrodu przez każdoczesnego właściciela lokalu. Inwestycja będzie wykonywana zgodnie z nową ustawą deweloperską. Kupujący zwolniony jest z zapłaty podatku PCC.
PURCHASED BY FOREIGNERS
To purchase this property, non-EU nationals must obtain a permit from the Ministry of the Interior and Administration (approx. 3 months of processing). Call us to talk about the details.
ПОКУПКА НЕДВИЖИМОСТИ ИНОСТРАНЦАМИ
Чтобы приобрести эту недвижимость, граждане стран, не входящих в ЕС, должны получить разрешение от Министерства внутренних дел и администрации. Позвоните нам, и мы обсудим детали.
Zainteresowała Cię ta nieruchomość i doskonała lokalizacja? Chcesz wiedzieć więcej? Wszelkie szczegóły, w tym dokładny standard wykończenia, dostępne podczas prezentacji lub rozmowy. - Zadzwoń i porozmawiajmy, każdego z siedmiu dni tygodnia!
Niniejsza informacja nie jest ofertą w rozumieniu Ustawy Deweloperskiej. Na obecnym etapie jest to jedynie informacja o planowanej przez Dewelopera do rozpoczęcia w czwartym kwartale roku 2025 inwestycji.